
フィルターレス制御盤用クーラー(ノンフロン)
ENC-GR1500L-Pro
| ความสามารถในการทำความเย็น (วัตต์) | 1460 |
|---|---|
| แรงดันไฟฟ้าของแหล่งจ่ายไฟ (V) | เฟสเดียว AC200-240 |
| ประเภทการติดตั้ง | การติดตั้งด้านข้าง |
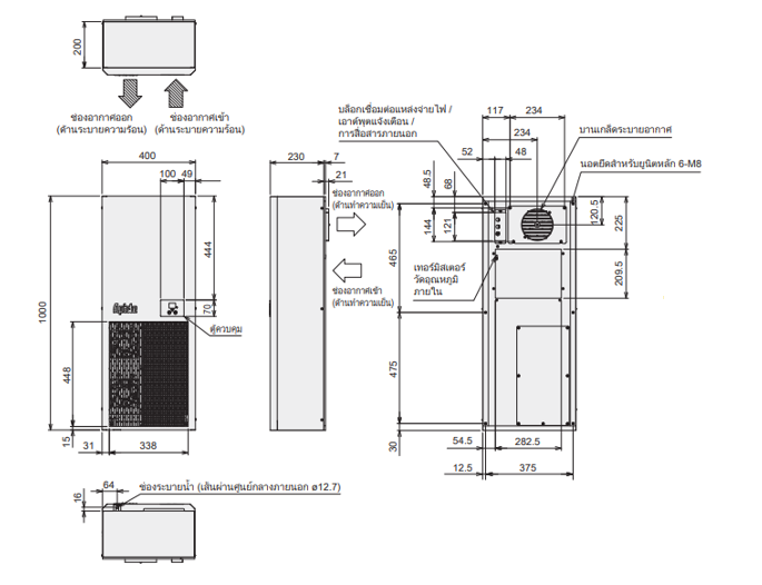
| ขนาดภายนอก (มม.) | H1000×W400×D230 |
| มวล (กก.) | 約32 |
การสอบถาม
ดาวน์โหลด
รายละเอียดสินค้า ENC-GR1500L-Pro
ข้อมูลจำเพาะ
ดูข้อมูลจำเพาะในแคตตาล็อก(50/60เฮิรตซ์)
| ประเภทการติดตั้ง | การติดตั้งด้านข้าง |
|---|---|
| ความสามารถในการทำความเย็น (วัตต์) | 1460 |
| ช่วงการตั้งค่าอุณหภูมิ (℃) | 25~45 |
| อุณหภูมิโดยรอบ (℃) | 20~55 |
| ความชื้นโดยรอบ (%RH) | 10 ถึง 85 (ไม่มีการควบแน่น) |
| ขนาดภายนอก (มม.) | H1000×W400×D230 |
| มวล (กก.) | 約32 |
| สีทาบ้าน | สีเบจอ่อนเทียบเท่า 5Y7/1 โดยประมาณ |
| แรงดันไฟฟ้าของแหล่งจ่ายไฟ (V) | เฟสเดียว AC200-240 |
| อัตราการใช้พลังงานปัจจุบัน: จัดอันดับ (A) * | 4.3 |
| การใช้พลังงาน: พิกัด (วัตต์) * | 710 |
| ความจุเบรกเกอร์ที่แนะนำ (A) | 10 |
| ความต้านทานการสั่นสะเทือน | JIS Z0200 ระดับ 1 |
| ระดับการป้องกันฝุ่นและน้ำ | เทียบเท่า IP54 (เส้นทางการไหลเวียนภายใน) |
| การรับรอง | ซีอี/อีทีแอล/ซีซีซี |
| ปริมาณสารทำความเย็น/ปริมาณการเติม (กรัม) | R1234yf 600g |
| เสียงรบกวน (dB(A)) | 約74 |
| เอาต์พุตสัญญาณเตือน | หน้าสัมผัสแบบไม่มีแรงดันไฟ: โหลดต้านทาน AC250V 2A/DC30V 2A |
| แสดง | อุณหภูมิแผง/ข้อผิดพลาด/การทำงาน |
*ความสามารถในการทำความเย็น: ค่าความจุที่กำหนดเมื่ออุณหภูมิโดยรอบ/ภายในและความชื้นอยู่ที่ 35°C/40% RH และแรงดันไฟฟ้าของแหล่งจ่ายไฟอยู่ที่ 200V
(วิธีการทดสอบ: วิธีทดสอบเอนทัลปีของอากาศภายในอาคารตามมาตรฐาน JIS B 8615-1)
*ช่วงอุณหภูมิและความชื้นโดยรอบที่ใช้จะกำหนดช่วงการทำงานและไม่รับประกันประสิทธิภาพที่ได้รับการจัดอันดับ
*ระดับการป้องกันฝุ่นและน้ำหยด: ไม่รวมช่องระบายน้ำ
*โปรดอ่านคู่มือการใช้งานอย่างละเอียดก่อนใช้งานและใช้ให้ถูกต้อง
*เมื่อเปรียบเทียบภายใต้สภาวะอุณหภูมิแวดล้อม 35°C, การตั้งค่าอุณหภูมิแผงภายใน 35°C, ความถี่ไฟฟ้า 60Hz, โหลดแผงภายใน 800W
รุ่นก่อนหน้า ENC-GR1500L กินไฟถึง 554W ในขณะที่ ENC-GR1500L-Pro กินไฟเพียง 250W ให้ประสิทธิภาพการทำงานที่เหนือกว่า
ขนาดภายนอก

ภาพวาดการติดตั้ง

แผนภาพลักษณะความสามารถในการทำความเย็น

*หากคุณวางแผนที่จะใช้ เครื่องปรับอากาศสำหรับตู้ควบคุม ในสภาพแวดล้อมที่ใกล้เคียงกับขีดจำกัดบนของอุณหภูมิแวดล้อมที่อนุญาต โปรดปรึกษาตัวแทนฝ่ายขายของเรา
【บันทึก】
◯โปรดอ่านคู่มือการใช้งานก่อนใช้งานและใช้งานอย่างถูกต้อง
◯สินค้าจะถูกจัดส่งไปยังรถของคุณ (เฉพาะสถานที่ที่กำหนดในประเทศ ไม่รวมเกาะห่างไกล)
◯ ขึ้นอยู่กับรุ่นและจำนวนรถ อาจจำเป็นต้องใช้บริการเครื่องบินเช่าเหมาลำ (อาจมีค่าใช้จ่ายเพิ่มเติม)
◯สำหรับการจัดส่งไปต่างประเทศ เราขอแนะนำให้ใช้บรรจุภัณฑ์แยกต่างหากสำหรับการจัดส่งไปต่างประเทศ
○โปรดตรวจสอบข้อมูลจำเพาะของพัดลมระบายความร้อน FA และติดตั้งอุปกรณ์ตัดวงจรที่เหมาะสม (อุปกรณ์ตัดไฟรั่วลงดิน) ระหว่างพัดลมระบายความร้อน FA กับแหล่งจ่ายไฟ
◯การใช้งานผลิตภัณฑ์นอกช่วงกำลังไฟที่กำหนดอาจทำให้ผลิตภัณฑ์ทำงานผิดปกติ
โปรดทำการบำรุงรักษาเป็นประจำ
◯การไม่บำรุงรักษาอย่างสม่ำเสมออาจส่งผลให้ประสิทธิภาพของผลิตภัณฑ์ลดลงหรือเกิดปัญหาได้
อย่าใช้งานเครื่องทำความเย็น FA อย่างต่อเนื่องในช่วงอุณหภูมิภายนอกต่ำในฤดูหนาว
เมื่อทิ้งผลิตภัณฑ์นี้ โปรดปฏิบัติตามกฎหมายและข้อบังคับที่เกี่ยวข้องทั้งหมด และทิ้งอย่างถูกวิธี
หากคุณมีปัญหาในการเลือกผลิตภัณฑ์ หรือต้องการปรึกษาเกี่ยวกับการนำไปใช้งาน
โปรดอย่าลังเลที่จะติดต่อเรา
หากคุณดูหน้านี้ แสดงว่าคุณตรวจสอบเอกสารเหล่านี้ด้วย:
การสอบถาม
สำหรับการสอบถามผลิตภัณฑ์, การขอใบเสนอราคา, ฯลฯ
โปรดอย่าลังเลที่จะติดต่อเรา




