
เครื่องปรับอากาศสำหรับตู้ควบคุม (สารทำความเย็นฟรีออน/ข้อกำหนดพิเศษ)
อีเอ็นซี-เอ็นดับบลิว2200แอล
| ความสามารถในการทำความเย็น (วัตต์) | 2000/2200 |
|---|---|
| แรงดันไฟฟ้าที่กำหนด (V) | AC200 สามเฟส |
| ประเภทการติดตั้ง | การติดตั้งด้านข้าง |
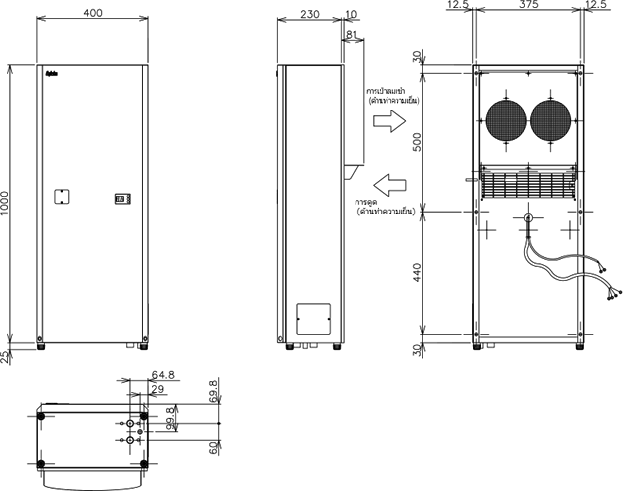
| ขนาดภายนอก (มม.) | H1000×W400×D230 |
| มวล (กก.) | 43 |
การสอบถาม
ดาวน์โหลด
ENC-NW2200L รายละเอียดสินค้า
ข้อมูลจำเพาะ
ดูข้อมูลจำเพาะในแคตตาล็อก(50/60เฮิรตซ์)
| ประเภทการติดตั้ง | การติดตั้งด้านข้าง |
|---|---|
| ความสามารถในการทำความเย็น (วัตต์) | 2000/2200 |
| ช่วงการตั้งค่าอุณหภูมิ (℃) | 25~45 |
| อุณหภูมิโดยรอบ (℃) | 20~55 |
| ความชื้นโดยรอบ (%RH) | 10 ถึง 80 (ไม่มีการควบแน่น) |
| ขนาดภายนอก (มม.) | H1000×W400×D230 |
| มวล (กก.) | 43 |
| สีทาบ้าน | Munsell 5Y7/1 เทียบเท่าสีเบจอ่อน |
| แรงดันไฟฟ้าที่กำหนด (V) | AC200 สามเฟส |
| อัตราการใช้พลังงานปัจจุบัน: จัดอันดับ (A) * | 3.0/2.5 |
| อัตราการบริโภคกระแสไฟฟ้า: สูงสุด (A) | 3.3/3.0 |
| กระแสไฟเริ่มต้น (A) | 31/30 |
| การใช้พลังงาน: พิกัด (วัตต์) * | 490/570 |
| การใช้พลังงาน: สูงสุด (W) | 690/810 |
| น้ำหล่อเย็น/ช่วงอุณหภูมิ (℃) | 10~40 |
| น้ำหล่อเย็น/อัตราการไหล (ℓ/นาที) | 8 |
| น้ำหล่อเย็น/แรงดัน (Mpa) | 0.2~0.5 |
| ความต้านทานต่อเสียงรบกวน | การทดสอบภูมิคุ้มกันแบบชั่วคราว/ระเบิดอย่างรวดเร็ว ระดับ 4 |
| ความต้านทานการสั่นสะเทือน | ความถี่: 5Hz แอมพลิจูดรวม: 20 มม. |
| ปริมาณสารทำความเย็น/ปริมาณการเติม (กรัม) | R134a 200 กรัม |
| เสียงรบกวน (dB(A)) | 62/62 |
| เอาท์พุตภายนอก | เอาต์พุตสัญญาณเตือน (หน้าสัมผัสที่ไม่มีแรงดันไฟฟ้า: โหลดต้านทาน 250V 2A) |
| แสดง | ไฟ LED แสดงอุณหภูมิภายใน/ข้อผิดพลาด/ไฟ LED แสดงการทำงาน |
บันทึก)
ความสามารถในการทำความเย็น: ความสามารถในการทำความเย็นเมื่ออุณหภูมิอากาศภายนอกอยู่ที่ 35°C อุณหภูมิแผงภายในอยู่ที่ 35°C - 40% อุณหภูมิน้ำเข้าหล่อเย็นอยู่ที่ 35°C อุณหภูมิน้ำอยู่ที่ 25°C และอัตราการไหลของน้ำอยู่ที่ 8 m3/นาที (เงื่อนไขการวัด: วิธีการเอนทัลปีของอากาศตามมาตรฐาน JIS-B8615-1)
ค่า MAX: ค่าเมื่ออุณหภูมิโดยรอบเป็นอุณหภูมิโดยรอบสูงสุดที่อนุญาต ความชื้นโดยรอบคือ 40% RH และอุณหภูมิของน้ำคือ 40°C
- ใช้แรงดันไฟฟ้าแหล่งจ่ายไฟภายใน ±10% ของแรงดันไฟฟ้าที่กำหนด
- โปรดอ่านคู่มือการใช้งานอย่างละเอียดก่อนใช้งานและใช้ให้ถูกต้อง
ขนาดภายนอก

ภาพวาดการติดตั้ง

กราฟลักษณะความสามารถ

*หากคุณวางแผนที่จะใช้เครื่องทำความเย็น FA ในสภาพแวดล้อมที่ใกล้เคียงกับขีดจำกัดบนของอุณหภูมิแวดล้อมที่อนุญาต โปรดปรึกษาตัวแทนฝ่ายขายของเรา
【บันทึก】
◯โปรดอ่านคู่มือการใช้งานก่อนใช้งาน
โปรดทราบว่าความสามารถในการทำความเย็นของเครื่องทำความเย็นจะแตกต่างกัน ขึ้นอยู่กับภาระความร้อนภายในแผง
○กรุณาปิดเครื่องทำความเย็น FA เมื่ออุณหภูมิภายนอกต่ำในฤดูหนาว
◯อย่าตั้งอุณหภูมิให้ต่ำกว่าอุณหภูมิภายนอกโดยไม่จำเป็น
ตรวจสอบคุณลักษณะของตัวระบายความร้อน FA และตรวจสอบให้แน่ใจว่าคุณได้ติดตั้งเบรกเกอร์ที่เหมาะสม (มีจำหน่ายทั่วไป) ระหว่างตัวระบายความร้อน FA และแหล่งจ่ายไฟ
หากคุณมีปัญหาในการเลือกผลิตภัณฑ์ หรือต้องการปรึกษาเกี่ยวกับการนำไปใช้งาน
โปรดอย่าลังเลที่จะติดต่อเรา
หากคุณดูหน้านี้ แสดงว่าคุณตรวจสอบเอกสารเหล่านี้ด้วย:
การสอบถาม
สำหรับการสอบถามผลิตภัณฑ์, การขอใบเสนอราคา, ฯลฯ
โปรดอย่าลังเลที่จะติดต่อเรา




