
เครื่องปรับอากาศสำหรับตู้ควบคุม (ฟรีออน)
อีเอ็นซี-อาร์1610เอชดี
| ความสามารถในการทำความเย็น (วัตต์) | 1450/1600 |
|---|---|
| แรงดันไฟฟ้าที่กำหนด (V) | AC100 เฟสเดียว |
| ประเภทการติดตั้ง | การติดตั้งด้านข้าง |
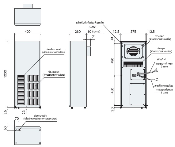
| ขนาดภายนอก (มม.) | H1000×W400×D260 |
| มวล (กก.) | 42 |
การสอบถาม
ดาวน์โหลด
ENC-AR1610HD รายละเอียดสินค้า
ข้อมูลจำเพาะ
ดูข้อมูลจำเพาะในแคตตาล็อก(50/60เฮิรตซ์)
| ประเภทการติดตั้ง | การติดตั้งด้านข้าง |
|---|---|
| ความสามารถในการทำความเย็น (วัตต์) | 1450/1600 |
| ช่วงการตั้งค่าอุณหภูมิ (℃) | 25~45 |
| อุณหภูมิโดยรอบ (℃) | -5~55 |
| ความชื้นโดยรอบ (%RH) | 10 ถึง 85 (ไม่มีการควบแน่น) |
| ขนาดภายนอก (มม.) | H1000×W400×D260 |
| มวล (กก.) | 42 |
| การเคลือบผิว | NSSC 180-HL หมายเลข 4 จบ |
| แรงดันไฟฟ้าที่กำหนด (V) | AC100 เฟสเดียว |
| อัตราการใช้พลังงานปัจจุบัน: จัดอันดับ (A) * | 7.6/7.0 |
| อัตราการบริโภคกระแสไฟฟ้า: สูงสุด (A) | 8.5/8.8 |
| กระแสไฟเริ่มต้น (A) | 22.3/20.5 |
| การใช้พลังงาน: พิกัด (วัตต์) * | 610/650 |
| การใช้พลังงาน: สูงสุด (W) | 740/830 |
| ความต้านทานการสั่นสะเทือน | เทียบเท่ากับ JIS Z 0200 Level1 |
| ระดับการป้องกันฝุ่นและน้ำ | เทียบเท่า IP54 (เส้นทางการไหลเวียนภายใน) |
| ปริมาณสารทำความเย็น/ปริมาณการเติม (กรัม) | R407C 300 กรัม |
| เสียงรบกวน (dB(A)) | 約65/68 |
| เอาท์พุตภายนอก | เอาต์พุตสัญญาณเตือน (หน้าสัมผัสที่ไม่มีแรงดันไฟฟ้า: โหลดต้านทาน 250V 2A) |
| แสดง | ไฟ LED แสดงอุณหภูมิภายใน/ข้อผิดพลาด, ไฟ LED แสดงการทำงาน |
บันทึก)
ความสามารถในการทำความเย็น: ค่าความจุที่กำหนดเมื่ออุณหภูมิภายนอกอยู่ที่ 35°C และอุณหภูมิภายในตั้งไว้ที่ 35°C (เงื่อนไขการวัด: วิธีเอนทัลปีอากาศ JIS-C-9612)
ไม่รับประกันว่าจะเป็นไปตามเงื่อนไขอุณหภูมิแวดล้อมและความชื้นในการใช้งาน
ค่าที่กำหนด: ค่าเมื่ออุณหภูมิการทำงานโดยรอบอยู่ที่ 35°C และความชื้นโดยรอบอยู่ที่ 40% RH
ค่า MAX: ค่าเมื่ออุณหภูมิโดยรอบเป็นอุณหภูมิโดยรอบสูงสุดที่อนุญาตและความชื้นโดยรอบอยู่ที่ 40% RH
อุณหภูมิโดยรอบ: หากอุณหภูมิภายนอกต่ำกว่า 0°C ให้ตั้งอุณหภูมิภายในแผงไว้ที่ 30°C หรือสูงกว่า
- ใช้แรงดันไฟฟ้าแหล่งจ่ายไฟภายใน ±10% ของแรงดันไฟฟ้าที่กำหนด
- โปรดอ่านคู่มือการใช้งานอย่างละเอียดก่อนใช้งานและใช้ให้ถูกต้อง
ขนาดภายนอก

ภาพวาดการติดตั้ง

กราฟลักษณะความสามารถ

*หากคุณวางแผนที่จะใช้เครื่องทำความเย็น FA ในสภาพแวดล้อมที่ใกล้เคียงกับขีดจำกัดบนของอุณหภูมิแวดล้อมที่อนุญาต โปรดปรึกษาตัวแทนฝ่ายขายของเรา
【บันทึก】
◯โปรดอ่านคู่มือการใช้งานก่อนใช้งานและใช้ให้ถูกต้อง
◯สินค้าจะถูกจัดส่งไปที่ยานพาหนะ(สถานที่ภายในประเทศที่กำหนด ไม่รวมเกาะห่างไกล)
◯ อาจต้องใช้บริการเที่ยวบินเช่าเหมาลำ ขึ้นอยู่กับรุ่นและจำนวนรถ (อาจมีค่าใช้จ่ายเพิ่มเติม)
◯สำหรับการจัดส่งไปต่างประเทศ เราขอแนะนำให้แยกบรรจุภัณฑ์ต่างประเทศ
○ โปรดตรวจสอบข้อมูลจำเพาะของตัวระบายความร้อน FA และติดตั้งเบรกเกอร์วงจรที่เหมาะสม (เบรกเกอร์วงจรสายไฟ) ระหว่างตัวระบายความร้อน FA และแหล่งจ่ายไฟ
◯การใช้ผลิตภัณฑ์นอกช่วงพลังงานที่กำหนดอาจทำให้เกิดการทำงานผิดปกติได้
กรุณาทำการบำรุงรักษาตามปกติ
◯การไม่ดำเนินการบำรุงรักษาตามปกติอาจส่งผลให้ประสิทธิภาพของผลิตภัณฑ์ลดลงหรือเกิดปัญหาได้
ห้ามใช้งานเครื่องทำความเย็น FA อย่างต่อเนื่องในขณะที่อุณหภูมิภายนอกต่ำในฤดูหนาว
เมื่อจะกำจัดผลิตภัณฑ์นี้ โปรดปฏิบัติตามกฎหมายและข้อบังคับที่เกี่ยวข้องทั้งหมด และกำจัดอย่างเหมาะสม
หากคุณมีปัญหาในการเลือกผลิตภัณฑ์ หรือต้องการปรึกษาเกี่ยวกับการนำไปใช้งาน
โปรดอย่าลังเลที่จะติดต่อเรา
หากคุณดูหน้านี้ แสดงว่าคุณตรวจสอบเอกสารเหล่านี้ด้วย:
การสอบถาม
สำหรับการสอบถามผลิตภัณฑ์, การขอใบเสนอราคา, ฯลฯ
โปรดอย่าลังเลที่จะติดต่อเรา

สินค้าที่ดูล่าสุด


