PCU-SL15000W产品详情
规格
(50/60Hz)
| 冷却方式 | 水冷式 |
|---|---|
| 制冷能力 | 14200/14200 |
| 加热能力 | 2500 |
| 循环水 | 纯水 (1μs/cm以上)、蒸馏水、乙二醇 (浓度30%以下) |
| 控温精度(℃) | ±0.1 |
| 使用温度范围(℃) | 2~45 |
| 循环水水温范围(清水)(℃) | -5~45 |
| 循环水水温范围(防冻)(℃) | -5~45 |
| 循环水流量范围(ℓ/min) | 20~70 |
| 循环水压力范围(Mpa) | 0.7以下 |
| 扬程 (m) | 51 |
| 油箱容积 (l) | 35 |
| 冷却水温度范围 (°C) | 5~45 |
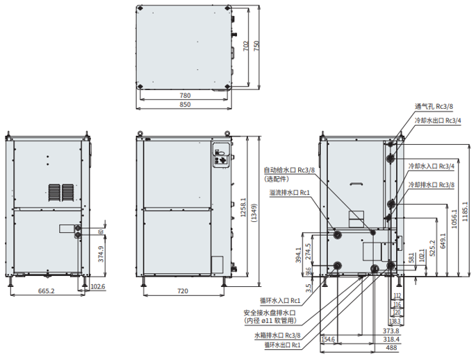
| 外部尺寸 (mm) | H1349×W850×D750 |
| 外观颜色 | DIC G-260 (相当于N7.5) |
| 重量(公斤) | 139 |
| 额定电压(V) | 三相200~230V交流电 |
| 消耗电力(千瓦) | 4.6 |
| 消耗电流/分钟(A) | 14 |
| 消耗电流/最大(A) | 19 |
| 电源容量(kVA) | 7.6 |
| 建议的断路器容量 (A) | 30 |
| 组件/压缩机 | 全封闭旋转式 |
| 组件/冷凝器 | 板式换热器 |
| 组件/冷却器 | 板式换热器 |
| 认证 | CE |
| 冷媒 | R410A 1250g |
| 噪音(分贝) | 58 |
| 安全电路/压缩机 | 马达保护器 |
| 输入输出/水温上下限警报 | 无电压a触点 (250V交流电/2A交流电) |
| 输入输出/停止运转输出 | 无电压a触点 (250V交流电/2A交流电) |
| 输入输出/停止运转输入 | 无电压输入 |
| 输入/输出/错误重置输入 | 无电压输入 |
| 输入/输出/紧急停止输入 | 无电压输入 |
| 输入/输出/以太网 | 通信规格:Ethernet 10BASE-T/100BASE-TX 通信协议:Socket (TCP/IP)、MC协议 (UDP/IP) IP地址:IPv4 |
| 安全性能 | CE (低压指令,EMC指令) |
*制冷能力、消耗电力和消耗电流额定:循环水温度20°C、循环水流量45 L/min、冷却水温度32°C、冷却水额定流量(额定能力所需的冷却水量)。
加热能力:环境温度40°C时启动。根据环境温度不同而变化。
※循环水:请使用纯度1μS/cm以上的纯水(低纯度)。清水:日本冷冻空调工业协会水质标准(JRA GL-02-1944)。
*控温精度:以负载一定时,主机温度指示器的显示值为准。
*所需冷却水流量:额定能力所需的冷却水量。
*最大消耗电流:循环水水温20℃、循环水流量70L/min、冷却水温度45℃时。
*抗震性:在MIL-STD-810F标准的测试条件下,高达100Hz。
*运行噪音:在水平距离1米、高度1米处测量。
外形尺寸

■每根管道直径
循环水出口:Rc1,[紧固扭矩(推荐)]80N・m
循环水入口:Rc1,[紧固扭矩(建议)]80N・m
冷却水入口:Rc3/4,[建议紧固扭矩]50N・m
冷却水出口:Rc3/4,[紧固扭矩(建议)]50N・m
排气孔:Rc3/8,[紧固扭矩(建议)] 25N・m
冷却水排出口:Rc3/8,【紧固扭矩(推荐)】25N・m
油箱泄油口:Rc3/8,【紧固扭矩(建议)】25N·m
溢流排水口:Rc1,【紧固扭矩(推荐)】80N·m
自动供水口(配件):Rc3/8,[建议紧固扭矩]25N・m
安全盘排水口:适用于内径Φ11的软管
泵能力

扬程:1 [m] =0.0098 [MPa] 。
制冷能力






